Direkt zum Seiteninhalt
Menü überspringen
Georg Skalecki - Architectura Francorum
Menü überspringen
Dölsach - Bischofskirche
Lokalisierung - Beschreibung/Localisation - Description
Dölsach (Aguntum)
Kreis/Dép.: Lienz, Tirol, A
46.82836/12.82382

Bischofskirche
Petrus (?)
Bischofskirche

Gründung/Fondation: Römerzeit (100-480): 400 (um)

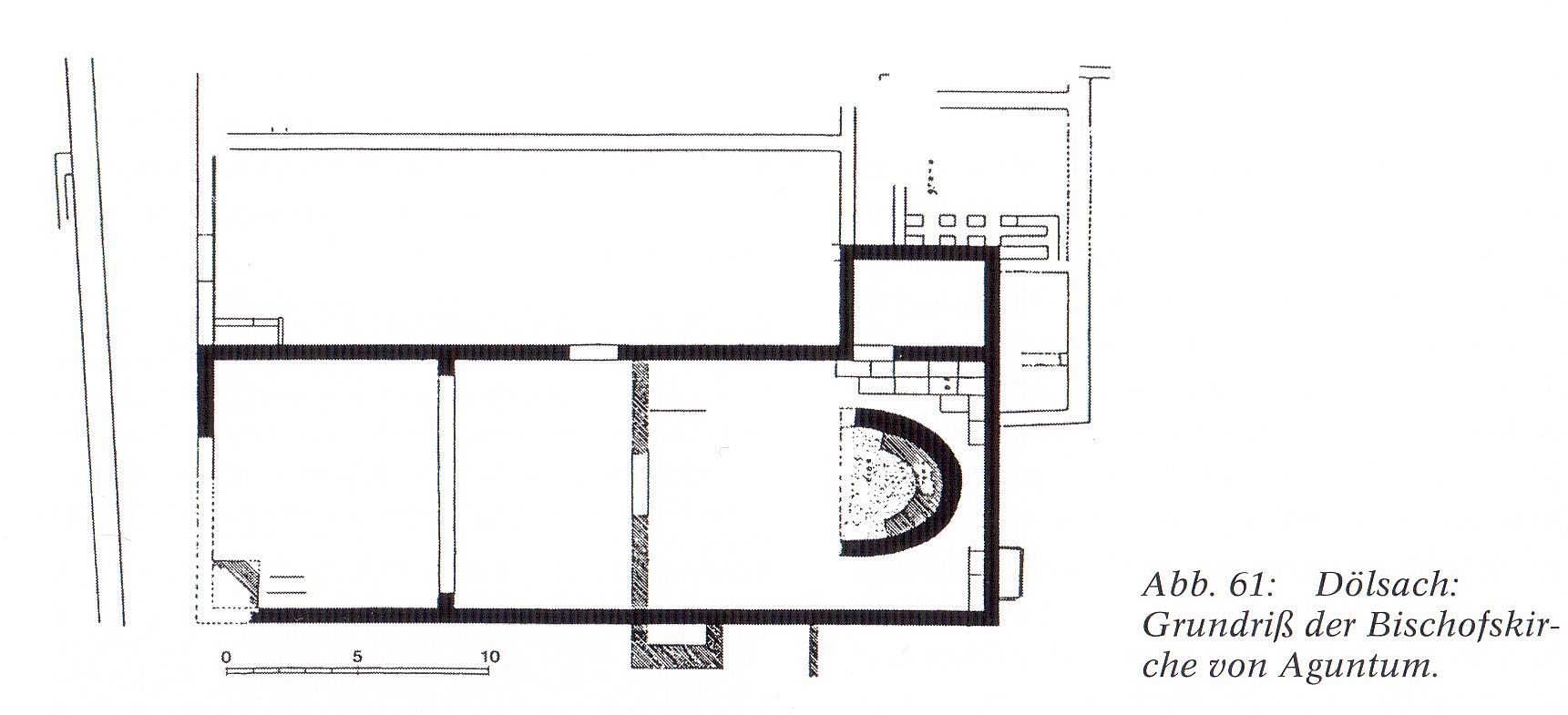
Bau I 400 (um) Saal; Rechteckchor; Chorschranken; Priesterbank 9,4 x 29,3
Verlegung Lavant 500 (um)
Zerstörung 500 (nach)

In der römischen Stadt Aguntum, vor der Stadtmauer aber in einem römisch besiedelten Wohnviertel, wurde um 400 ein Bistum gegründet. Eine Saalkirche mit Rechteckchor und einer apsidialen Priesterbank sowie eine Chorschranke wurde ergraben. Um 500 wurde der Bischofssitz nach Lavant (obj-1017) verlegt und die Kirche in Aguntum wohl auch bald zerstört.

Dans la ville romaine d'Aguntum, à l'extérieur des remparts mais dans un quartier résidentiel romain, un évêché fut fondé vers 400. Une église-halle avec un choeur rectangulaire, un banc sacerdotal en forme d'abside et une clôture de choeur ont été mis au jour. Vers 500, le siège épiscopal fut transféré à Lavant (obj-1017) et l'église d'Aguntum fut probablement détruite peu après.

Quellen/Sources
- Alzinger, Wilhelm 1972. S. 35-40. [...]
- Alzinger, Wilhelm 1986. S. 1ff. [...]
- Glaser, Franz 1997. S. 141-146. [...]


© Georg Skalecki: Architectura Francorum
Version: 31.01.2026
Als Quelle beim Zitieren ist anzugeben/La source des citations doit être indiquée:
Georg Skalecki: Architectura Francorum - https://francia.skalecki.info
Kontakt/Me contacter: Francia@skalecki.info
Zurück zum Seiteninhalt