Direkt zum Seiteninhalt
Menü überspringen
Georg Skalecki - Architectura Francorum
Menü überspringen
Corvey - Pfarrkirche St. Stephanus und Vitus
Lokalisierung - Beschreibung/Localisation - Description
Corvey (Nova Corbeia; Höxter)
Kreis/Dép.: Höxter, Nordrhein-Westfalen, D
51.77823/9.41033

Klosterkirche
Stephanus; Vitus
Pfarrkirche St. Stephanus und Vitus

Gründung/Fondation: Karolingerzeit (687-888): 815
Gründer: Karl der Große

Bau I 822-844 Dreischiffig; Basilika; Rechteckchor; Westbau; Atrium; Torbau
Bau II 867 Apsis; Umgangschor; Außenkrypta
Bau IIa 873-885 Westbau; Atrium
Bau akt 1667-1671

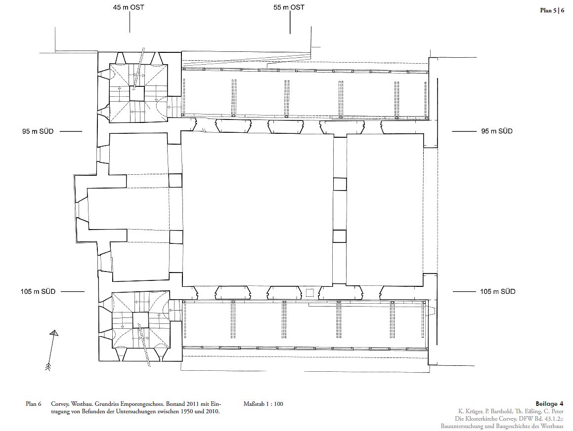
Noch auf Weisung Karls des Großen (+814) wurde 815 in dem bis heute nicht genau lokalisierten, aber unweit von Corvey gelegenen Hethis, eine Abtei als Stützpunkt während der Sachsenkriege zur Absicherung sächsischer Gebietet gegründet. Später, vor 822, wurde der Standort verlegt. Das Kloster wurde mit Mönchen aus Corbie und Verwandten der königlichen Familie besetzt. Gründungsabt war Adalhard, der als Abt von Corbie (obj-9) den dortigen Neubau geleitet hatte. Die Lage des neuen Klosters Corvey (Nova Corbeia) am Hellweg (Salzweg, wichtige O-W-Handelsstraße Brügge-Novgorod) war strategisch günstig am westlichen Weserübergang bei Höxter. Erst 822 erfolgte schließlich der Bau der Klosterkirche. Es folgte eine kulturelle Blüte des Klosters mit einer Bibliothek mit den Gesetzen Karls sowie antiken Schriften z.B. von Tacitus, Cicero. 822-844 entstand Bau I, eine dreischiffige Basilika mit einem Westbau und einem Atrium. 836 wurden Reliquien des Vitus aus Saint-Denis hierher gebracht. Bau I hatte bereits einen Westbau. Grabungen haben westlich vor der Kirche eindeutige Spuren eines Vorbaus aufgedeckt. In rund sechs Metern Abstand vor der Fassade ist ein längeres Fundamentstück in Nord-Süd-Ausrichtung gefunden worden, das zusammen mit der nördlich in gleicher Flucht verlaufenden angrenzenden Ausbruchgrube eindeutig zu einem massiven Fundament gehören muss, das somit in einer Breite von rund sechs Metern und einem Abstand von sechs Metern parallel vor der Fassade lag. Im rechten Winkel liegt noch ein Fragment eines Fundaments, das die Nordmauer markiert. Diese Teile können nur das Fundament eines schmalen, damit quadratischen Westbaus gewesen sein, der mit seiner Form typischerweise in die Zeit passt. Diese These wird nun bestätigt durch die neueste Forschung (Krüger 2025), die immerhin eine zweigeschossige Vorhalle vor Bau I vermutet. Dem Westbau vorgelagert gab es auch bereits jetzt ein Atrium mit einem Torbau. 867 erfolgte der Neubau von Chor, Querhaus sowie einer Außenkrypta. 873-885 errichtete man einen neuen größeren Westbau, der in wesentlichen Teilen original erhalten ist. Der neue Westbau gehört dem breiten Typus an, als Durchgangsraum zur Kirche im Erdgeschoss, sowie mit zweigeschossigem Obergeschoss. Unten rahmen Pfeiler den von vier Säulen gestalteten zentralen Durchgangsbereich. Oben ist die Mitte zweigeschossig mit Umgangsemporen. Die These, die westliche Empore soll der Platz für den Kaiser gewesen sein und dieser habe dort auf einem Thron gesessen, wie dies in seiner Pfalzkapelle in Aachen der Fall war, wird für Corvey bereits seit langem angezweifelt. Die offene Empore mit dem Fenster nach Westen war vielmehr der Platz, wo, überstrahlt vom Licht, die verehrten Reliquien ausgestellt wurden. Corvey lässt uns mit den Resten der Innendekoration, so Fragmente von originaler Wandmalerei mit Szenen aus der antiken Erzählung der Odysee, erahnen, wie die anderen Westbauten ausgesehen haben. Im 10. Jahrhundert (?) erfolgte eine Aufstockung der Türme. 1145-1159 wurde der Westbau mit Quergalerie umgestaltet und die Westtürme aufgestockt. Der Mittelturm wurde abgetragen. Nach Zerstörung im 30-jährigen Krieg erfolgte 1667-1671 der Neubau von Langhaus und Chor.

En 815, sur ordre de Charlemagne (+814), une abbaye fut fondée à Hethis, non localisée à ce jour, mais située non loin de Corvey, comme point d'appui pendant les guerres de Saxe pour protéger les territoires saxons. Plus tard, avant 822, le site a été déplacé. Le monastère fut occupé par des moines de Corbie et des parents de la famille royale. L'abbé fondateur était Adalhard qui, en tant qu'abbé de Corbie (obj-9), avait dirigé la nouvelle construction dans cette ville. La situation du nouveau monastère de Corvey (Nova Corbeia) sur le Hellweg (chemin du sel, importante route commerciale est-ouest Bruges-Novgorod) était stratégiquement favorable au passage occidental de la Weser près de Höxter. Ce n'est qu'en 822 que l'église du monastère fut finalement construite. Il s'ensuivit une floraison culturelle du monastère avec une bibliothèque contenant les lois de Charlemagne ainsi que des écrits antiques, par exemple de Tacite et de Cicéron. De 822 à 844, le bâtiment I, une basilique à trois nefs avec un bâtiment occidental et un atrium, fut construit. En 836, des reliques de saint Vite (Guy) y furent apportées de Saint-Denis. Le bâtiment I avait déjà un bâtiment occidental. Des fouilles ont révélé à l'ouest, devant l'église, les traces évidentes d'un porche. A une distance d'environ six mètres devant la façade, on a trouvé un long morceau de fondation orienté nord-sud qui, avec la fosse d'excavation adjacente s'étendant au nord dans le même alignement, doit clairement appartenir à une fondation massive, qui se trouvait donc parallèlement devant la façade sur une largeur d'environ six mètres et à une distance de six mètres. A angle droit se trouve encore un fragment de fondation marquant le mur nord. Ces parties ne peuvent avoir été que les fondations d'un bâtiment occidental étroit, donc carré, dont la forme est typique de l'époque. Cette hypothèse est désormais confirmée par les dernières recherches (Krüger 2025), qui supposent l'existence d'un porche à deux étages devant le bâtiment I. Devant le bâtiment occidental, il y avait déjà un atrium avec une porte fortifiée. En 867, le choeur, le transept et la crypte extérieure furent reconstruits. En 873-885, un nouveau bâtiment occidental plus grand fut érigé, dont les parties principales sont restées originales. Le nouveau bâtiment occidental appartient au type large, en tant qu'espace de passage vers l'église au rez-de-chaussée, et avec un étage supérieur à deux niveaux. En bas, des piliers encadrent la zone de passage centrale formée par quatre colonnes. En haut, le centre est à deux étages avec des portiques. La thèse selon laquelle la galerie ouest aurait été la place de l'empereur et que celui-ci s'y serait assis sur un trône, comme c'était le cas dans sa chapelle palatine à Aix-la-Chapelle, est depuis longtemps mise en doute pour Corvey. La galerie ouverte avec la fenêtre vers l'ouest était plutôt l'endroit où étaient exposées les reliques vénérées, éclairées par la lumière. Corvey nous laisse imaginer ce à quoi ressemblaient les autres bâtiments occidentaux grâce aux vestiges de la décoration intérieure, comme des fragments de peintures murales originales représentant des scènes de l'antique récit de l'Odyssée. Au 10e siècle ( ?), les tours ont été surélevées. En 1145-1159, le bâtiment ouest avec galerie transversale a été remanié et les tours ouest ont été surélevées. La tour centrale a été démolie. Après sa destruction pendant la guerre de Trente Ans, la nef et le choeur ont été reconstruits de 1667 à 1671.


Quellen/Sources
- Oswald; Schaefer; Sennhauser (Kat.) 1966. S. 55-57. [...]
- Heitz, Carol 1980. S. 148-156. [...]
- Jacobsen; Schaefer; Sennhauser (Nachtragsband) 1991. S. 81-84. [...]
- Schönfeld de Reyes, Dagmar 1999. S. 77-81, 151-156. [...]
- Claussen, Hilde 2002. S. 9-48. [...]
- Lobbedey, Uwe (Corvey) 2002. S. 115-129. [...]
- Lobbedey, Uwe (Hortus) 2002. S. 83-98. [...]
- Dehio Handbuch (Westfalen 2011). S. 489-487. [...]
- Claussen, Hilde; Skriver, Anna 2007. S. 1ff. [...]
- Gai, Sveva; Krüger, Karl Heinrich; Thier, Bernd 2011. S. 1ff. [...]
- Costes, Alice 2019. S. 159-175. [...]
- Exner, Matthias 2020. S. 210-229. [...]
- Skalecki, Georg 2021. S. 7-32. [...]
- Krüger, Kristina 2022. S. 131-149. [...]
- Lobbedey, Uwe 2022. S. 879-886. [...]
- Kempkens, Holger; Ruhmann, Christiane (Hg.) 2024. S. 1ff. [...]
- Skalecki, Georg 2025. S. 5-46, Kat. A75. [...]
- Skalecki, Georg (Bremen-Wildeshausen) 2025. S. 18-49. [...]
- Krüger, Kristina; Barthold, Peter; Eißing, Thomas; Peter, Claus 2025. S. 1ff. [...]


© Georg Skalecki: Architectura Francorum
Version: 31.01.2026
Als Quelle beim Zitieren ist anzugeben/La source des citations doit être indiquée:
Georg Skalecki: Architectura Francorum - https://francia.skalecki.info
Kontakt/Me contacter: Francia@skalecki.info
Zurück zum Seiteninhalt