Direkt zum Seiteninhalt
Georg Skalecki - Architectura Francorum
Menü überspringen
Menü überspringen
Tegernsee - Kloster Tegernsee
Lokalisierung - Beschreibung/Localisation - Description
Tegernsee (Tegrnse)
Kreis/Dép.: Miesbach, Bayern, D
47.70744/11.75673

Klosterkirche
Salvator; Petrus; Quirinus
Kloster Tegernsee

Gründung/Fondation: Karolingerzeit (687-888): 746
Gründer: Huosi

Bau I 746 Saal (?)
Bau II 788/805 (?) Dreischiffig; Drei Apsiden (?); Westbau (?); Krypta (?)
Bau III 978-1041 Dreischiffig; Drei Apsiden; Westbau; Krypta
Bau IV 1426
Bau akt 1678

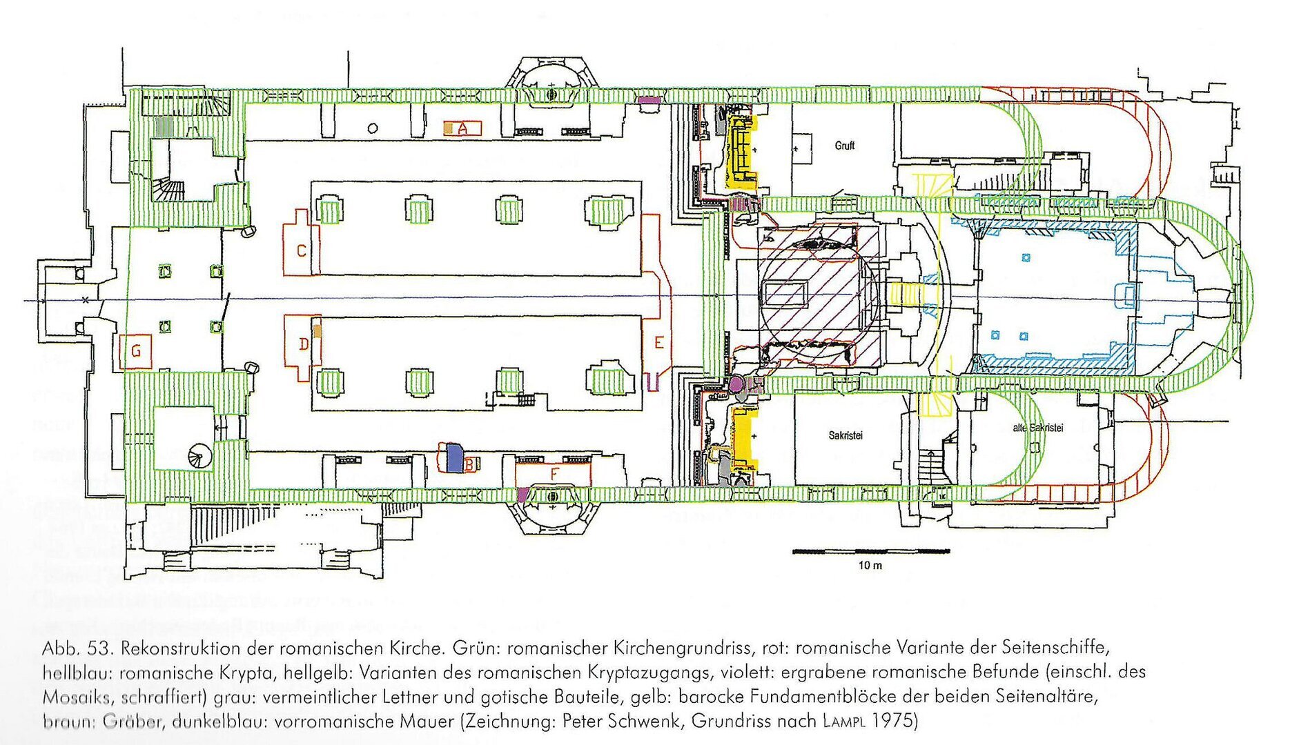
Die Klostergründung erfolgte 746/765 durch die Huosi Brüder Oatker und Adalbert mit Mönchen von St. Gallen.  Die Kirche wurde dem Salvator geweiht, 805 fand eine Reliquientranslation aus Rom der Gebeine des Quirinus statt, worauf das Patrozinium ergänzt wurde. Bereits mit der Absetzung des Bayernherzogs Tassilo 788 wurde Tegernsee karolingisches Reichskloster. Spätestens mit der Reliquientranslation dürften angemessene Um- bzw. Neubauten erfolgt sein. Diese konnten bei Ausgrabungen nicht nachgewiesen werden, allerdings ist zu fragen, ob nach den Zerstörungen des 10. Jahrhunderts der Neubau nach 978 nicht Strukturen des karolingischen Vorgängerbaus übernommen hat. Nach den Ungarneinfällen erfolgte nämlich 978 eine Neugründung von Mönchen aus St. Maximin in Trier. Ergraben und dieser Phase zugeschrieben wurden ein doppeltürmiger Westbau, eine Dreiapsidenanlage sowie eine Krypta und ein kreisrunder Mosaikboden. Für die Fertigstellung und Weihe dieses Baues ist das Jahr 1041 überliefert. Ein Neubau wurde nach einem Brand 1410 ab 1426 errichtet. Der aktuelle Bau stammt von 1678. In den heutigen Westtürmen und der Krypta sind Reste der mittelalterlichen Vorgänger erhalten.

Le monastère a été fondé en 746/765 par les frères Huosi Oatker et Adalbert avec des moines de Saint-Gall.  L'église a été consacrée au Sauveur.  En 805, les reliques de Quirinus ont été transférées de Rome, après quoi le patronage a été complété. Dès la destitution du duc de Bavière Tassilo en 788, Tegernsee devint un monastère impérial carolingien. Au plus tard lors du transfert des reliques, des transformations ou des constructions neuves appropriées ont dû être réalisées. Les fouilles n'ont pas permis de les mettre en évidence, mais on peut se demander si après les destructions du Xe siècle la nouvelle construction après 978 n'a pas repris les structures de l'édifice carolingien précédent. Après les invasions hongroises, le monastère fut en effet refondé en 978 par des moines de Saint-Maximin à Trèves. Une construction occidentale à deux tours, un ensemble à trois absides ainsi qu'une crypte et un sol en mosaïque circulaire ont été mis au jour et attribués à cette phase. L'achèvement et la consécration de ce bâtiment remontent à l'année 1041. Après un incendie en 1410, un nouveau bâtiment fut construit à partir de 1426. La construction actuelle date de 1678. Les tours ouest et la crypte actuelles conservent des vestiges des bâtiments médiévaux précédents.

Quellen/Sources
- Prinz, Friedrich 1965 (1988). Karte X. [...]
- Oswald; Schaefer; Sennhauser (Kat.) 1966. S. 330f. [...]
- Jacobsen; Schaefer; Sennhauser (Nachtragsband) 1991. S. 406f. [...]
- Dehio Handbuch (Bayern Bd. 4 1990). S. 1154-1157. [...]
- Germania Benedictina 2014. Bd. 2.3., S. 2249-2298. [...]
- Schwenk, Peter 2021. S. 9-52. [...]


© Georg Skalecki: Architectura Francorum
Version: 11.03.2026
Als Quelle beim Zitieren ist anzugeben/La source des citations doit être indiquée:
Georg Skalecki: Architectura Francorum - https://francia.skalecki.info
Kontakt/Me contacter: Francia@skalecki.info
Zurück zum Seiteninhalt