Direkt zum Seiteninhalt
Georg Skalecki - Architectura Francorum
Menü überspringen
Menü überspringen
Marmoutier - Abbaye Saint-Étienne
Lokalisierung - Beschreibung/Localisation - Description
Marmoutier (Monasterium Mauri; Maursmünster)
Kreis/Dép.: Bas-Rhin, Grand Est, F
48.69062/7.38257

Klosterkirche
Petrus; Paulus; Martin; Stephanus
Abbaye Saint-Étienne

Gründung/Fondation: Merowingerzeit (480-687): 590
Gründer: Liuberat

Bau I 590 Saal; Rechteckchor
Bau II 724 Saal; Zellenquerbau; Drei Apsiden
Bau III 816 Dreischiffig; Zellenquerbau; Drei Apsiden; Westbau (?)
Bau IV 971 Dreischiffig; Westbau (?)
Bau IVa 1096
Neubau Westbau akt 1140 Westbau
Bau Langhaus akt 1240

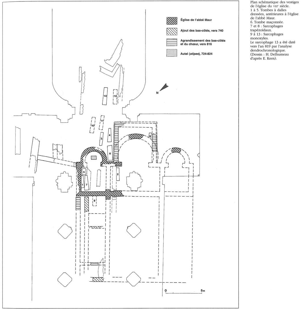
Um 590 erfolgte die Klostergründung wohl über römischen Resten durch den Columban-Schüler Liuberat und mit Unterstützung durch Childebert II. Im Mittelschiff, westlich der Vierung, wurden zwei Mauerzüge entdeckt, die einen Saal von 8,8 m Breite bezeugen könnten. Nach zwei Bränden 660 und 724 erfolgte eine Neugründung unter Abt Maurus, und sie erhielt als reiche Königsabtei den Namen Mauri Monasterium. 728 wurde durch Pirmin die Benediktinerregel eingeführt. Dieser Bau ist besser ergraben und lag südlich vom ersten, als Saalkirche mit nur 6,8 m Breite, einem Zellenquerhaus und drei Apsiden. Der erste Bau wurde vom nördlichen Querarm überbaut. 816 wurde von Kaiser Ludwig Benedikt von Aniane als Abt eingesetzt. Der bestehende Bau erhielt Seitenschiffe. Der Westteil ist nicht gut ergraben, jedoch könnte ein stärkerer Mauerabschnitt auf einen möglichen Westbau deuten, da allgemein auffallende Ähnlichkeiten zu Kornelimünster bestehen. Nach einem Brand 824 wurde die Kirche unter Drogon, Bruder von Ludwig und Bischof von Metz, wiederaufgebaut. Ein großer Neubau des 10. Jahrhunderts wurde 971 vom Straßburger Bischof Erkenbald geweiht, wie er aussah und ob er einen Westbau besaß, ist unklar. Eine Weihe erfolgte 1096 von Papst Urban II., worauf sie sich bezog ist ungewiss. Der heutige Westbau entstand um 1140, ob er ältere Vorbilder besaß kann nicht bewiesen werden. Das heutige Kirchenschiff entstand um 1240.

Vers 590, le monastère a été fondé par Liuberat, disciple de Columban, sur des vestiges romains, avec le soutien de Childebert II. Dans la nef centrale, à l'ouest de la croisée, deux pans de mur ont été découverts, qui pourraient témoigner d'une salle de 8,8 m de large. Après deux incendies en 660 et 724, une nouvelle fondation eut lieu sous l'abbé Maurus, et elle reçut le nom de Mauri Monasterium en tant que riche abbaye royale. En 728, la règle bénédictine fut introduite par Pirmin. Cette construction est mieux fouillée et se trouvait au sud de la première, sous forme d'église à nef unique de seulement 6,8 m de large, avec un transept cellulaire et trois absides. Le premier édifice a été recouvert par le bras transversal nord. En 816, l'empereur Louis a nommé Benoît d'Aniane abbé. L'édifice existant fut doté de nefs latérales. La partie ouest n'a pas été bien fouillée, mais un tronçon de mur plus épais pourrait indiquer une possible construction occidentale, car il existe en général des similitudes frappantes avec Kornelimünster. Après un incendie en 824, l'église fut reconstruite sous Drogon, frère de Louis et évêque de Metz. Une grande construction neuve du 10e siècle fut consacrée en 971 par l'évêque strasbourgeois Erkenbald ; on ne sait pas à quoi elle ressemblait et si elle possédait un bâtiment occidental. Une consécration a été faite en 1096 par le pape Urbain II, on ne sait pas à quoi elle se référait. Le bâtiment occidental actuel a été construit vers 1140, il n'est pas possible de prouver qu'il existait des modèles plus anciens. La nef actuelle a été construite vers 1240.

Quellen/Sources
- Prinz, Friedrich 1965 (1988). S. 170f, Karte IB, XIIC. [...]
- Dictionnaire des églises de France 1966-1971. VA S. 88f. [...]
- Kern, Erwin; Petry, François 1977. S. 39-88. [...]
- Reclams Kunstführer Frankreich II 1980. S. 102-106. [...]
- Jacobsen; Schaefer; Sennhauser (Nachtragsband) 1991. S. 267f. [...]
- Les premiers monuments chrétiens de la France 1995-1998. Bd. 3, S. 29-35. [...]
- Braun, Suzanne 2006. S. 51-58. [...]
- Bornert, René 2009-2011. Bd. 1, S. 67f; S: 70f; Bd. 2.1., S. 221-360. [...]
- Skalecki, Georg (Columban) 2021. S. 515-524. [...]
- Skalecki, Georg 2024. S. 5-44, Kat. C17. [...]


© Georg Skalecki: Architectura Francorum
Version: 11.12.2025
Als Quelle beim Zitieren ist anzugeben/La source des citations doit être indiquée:
Georg Skalecki: Architectura Francorum - https://francia.skalecki.info
Kontakt/Me contacter: Francia@skalecki.info
Zurück zum Seiteninhalt