Direkt zum Seiteninhalt
Menü überspringen
Georg Skalecki - Architectura Francorum
Menü überspringen
Heidenheim - Kloster Heidenheim
Lokalisierung - Beschreibung/Localisation - Description
Heidenheim
Kreis/Dép.: Weißenburg-Gunzenhausen, Bayern, D
49.01754/10.74296

Klosterkirche; Klosterkirche (Nonnen)
Wunibald
Kloster Heidenheim

Gründung/Fondation: Karolingerzeit (687-888): 752
Gründer: Wunibald

Bau I 752
Bau II 778 Westbau (?); Ostkrypta
Bau III 870 Westbau (?)
Bau akt 1182-1188 Westbau; Basilika; Ostquerhaus

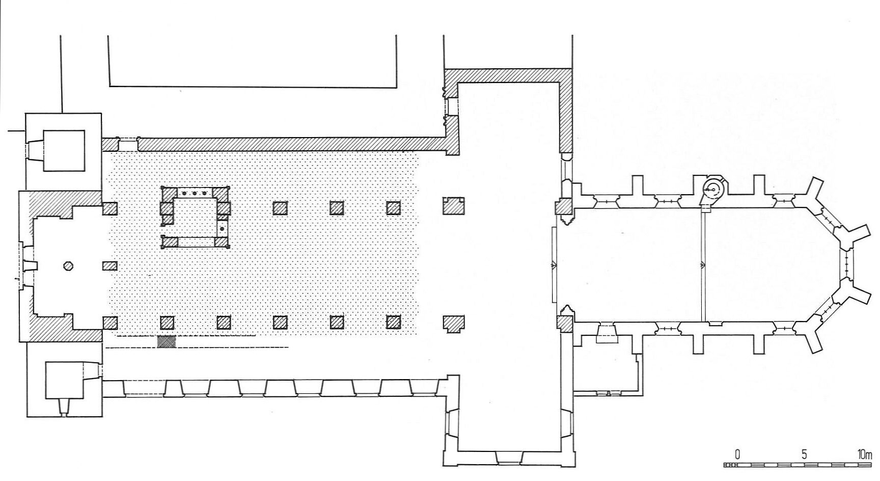
Das Kloster wurde unter Bonifatius 752 von Wunibald als Rodungskloster innerhalb der Reste einer römischen Siedlung gegründet. Dessen Schwester Walpurgis übernahm die Klosterleitung beim Tode von Wunibald (+761), und führte es ab 761 als Doppelkloster. Eine Krypta am Ostchor diente als Grablege für die Gebeine des Wunibald. Nach dem wohl provisorischem Gründungsbau entstand ab 761 ein Neubau, der 778 geweiht wurde. Wegen der Reliquienerhebung 777 könnte der Neubau die typischen Merkmale, eine Krypta und ein Westbau, erhalten haben, zumal auch der bestehende Bau einen massiven Westbau besitzt. 870 fand die Weihe eines Neubaus statt, vielleicht kam ein karolingischer Westbau auch erst jetzt hinzu. Nach einem Brand 1158 wurde 1182-1188 der weitestgehend bestehende romanische Bau errichtet, der 1363 einen gotischen Chor erhielt.

Le monastère fut fondé en 752 par Wunibald sous Boniface, comme monastère de défrichage au sein des vestiges d'une colonie romaine. Sa sour Walpurgis reprit la direction du monastère à la mort de Wunibald (+761) et le dirigea à partir de 761 comme monastère double. Une crypte située dans le chour oriental servait de lieu de sépulture pour les restes de Wunibald. Après la construction provisoire du bâtiment fondateur, un nouveau bâtiment fut érigé à partir de 761 et consacré en 778. En raison de l'élévation des reliques en 777, le nouveau bâtiment pourrait avoir conservé les caractéristiques typiques, à savoir une crypte et un bâtiment occidental, d'autant plus que le bâtiment existant possède également bâtiment occidental massive. En 870, un nouveau bâtiment fut consacré, et c'est peut-être à cette époque seulement qu'une aile ouest carolingienne fut ajoutée. Après un incendie en 1158, le bâtiment roman actuel fut construit entre 1182 et 1188, puis doté d'un choeur gothique en 1363.

Quellen/Sources
- Prinz, Friedrich 1965 (1988). S. 255f, Karte X, XIIC. [...]
- Dehio Handbuch (Bayern Bd. 1 1979). S. 352-354. [...]
- Haas, Walter 1982. S. 145-214. [...]
- Jacobsen; Schaefer; Sennhauser (Nachtragsband) 1991. S. 168f. [...]
- Germania Sacra. NF 45.1. 2006, S. 29ff. [...]
- Germania Benedictina 2014. Bd. 2.1., S. 759-769. [...]
- Skalecki, Georg 2024. S. 5-44, Kat. D18. [...]


© Georg Skalecki: Architectura Francorum
Version: 06.01.2026
Als Quelle beim Zitieren ist anzugeben/La source des citations doit être indiquée:
Georg Skalecki: Architectura Francorum - https://francia.skalecki.info
Kontakt/Me contacter: Francia@skalecki.info
Zurück zum Seiteninhalt