Direkt zum Seiteninhalt
Menü überspringen
Georg Skalecki - Architectura Francorum
Menü überspringen
Munster - Abbaye de Munster
Lokalisierung - Beschreibung/Localisation - Description
Munster (Monasterio sancti Gregorii; Haslach)
Kreis/Dép.: Haut-Rhin, Grand Est, F
48.04003/7.13770

Klosterkirche
Maria; Gregorius
Abbaye de Munster

Gründung/Fondation: Merowingerzeit (480-687): 633 (nach)

Bau I 633 (nach)
Bau II 800 (nach) Westbau (?)
Bau III 1140 (vor) Westbau (?)
Bau IV 1470/1479
Zerstörung (teilweise) 1802

633 oder eher 660 erfolgte die Gründung einer Abbatia Monasteriensis in valle Gregoriana von Luxeuil aus, unterstützt von König Childerich II. und Herzog Eticho. es könnte sich um eine Verlegung eines älteren Kloster in Haslach, wenig nördlich von Munster gelegen, handeln, das nach Prinz im 6. Jahrhundert entstanden sein soll. Erst Anfang des 9. Jahrhunderts scheint das Kloster größere Bedeutung und Reichtum erlangt. 826 erfolgte die Bestätigung der Immunität durch Kaiser Ludwig dem Frommen. Trotz archäologischer Sondierungen ist die Gestalt der frühen Bauten unbekannt. Im frühen 9. Jahrhundert muss es im Zuge eines Aufschwungs auch zu Neubauten gekommen sein. Um die Mitte des 12. Jahrhunderts (Altarweihen 1140) erfolgte ein Neubau, der wiederum einem gotischen Neubau von 1470/1479 weichen musste. Da diese Kirche einen Westbau besaß, kann über Vorgängerwestbauten spekuliert werden. Heute bestehen nach dem Teilabbruch von 1802 noch Ruinen.

En 633 ou plutôt en 660, une Abbatia Monasteriensis fut fondée dans la vallée Gregoriana de Luxeuil, avec le soutien du roi Childéric II et du duc Eticho. Il pourrait s'agir du transfert d'un ancien monastère situé à Haslach, un peu au nord de Munster, qui aurait été fondé par le prince au VIe siècle. Ce n'est qu'au début du IXe siècle que le monastère semble avoir acquis une importance et une richesse considérables. En 826, l'empereur Louis le Pieux confirma son immunité. Malgré des fouilles archéologiques, la forme des premiers bâtiments reste inconnue. Au début du IXe siècle, un essor économique a dû entraîner la construction de nouveaux bâtiments. Vers le milieu du XIIe siècle (consécration de l'autel en 1140), un nouveau bâtiment a été construit, qui a dû céder la place à une nouvelle construction gothique en 1470/1479. Comme cette église possédait une partie ouest, on peut spéculer sur l'existence de constructions occidentales antérieures. Aujourd'hui, après la démolition partielle de 1802, il n'en reste que des ruines.

Quellen/Sources
- Prinz, Friedrich 1965 (1988). S. 180, Karte XIIA, XIIB. [...]
- Reclams Kunstführer Frankreich II 1980. S. 118. [...]
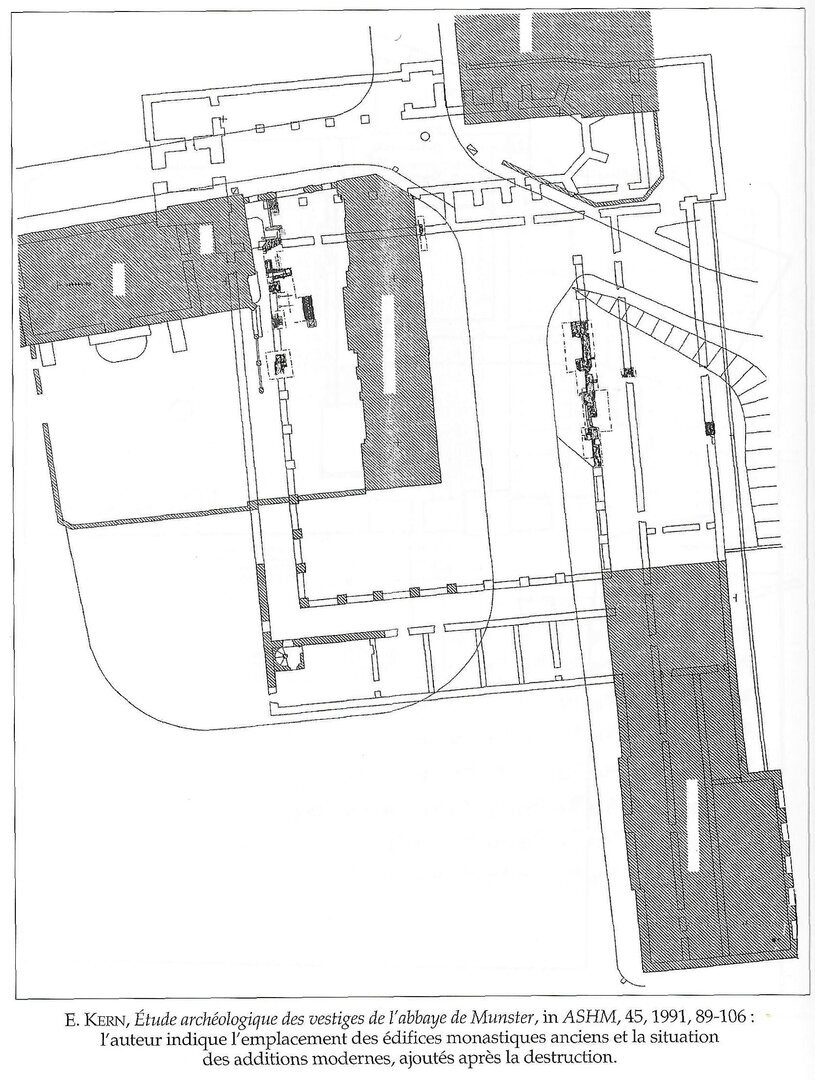
- Kern, Erwin 1991. S. 89-106. [...]
- Bornert, René 2009-2011. Bd. 1, S. 66f.; Bd. 2.1., S. 361-515. [...]
- Koch, Jacky 2019. S. 1ff. [...]


© Georg Skalecki: Architectura Francorum
Version: 10.12.2025
Als Quelle beim Zitieren ist anzugeben/La source des citations doit être indiquée:
Georg Skalecki: Architectura Francorum - https://francia.skalecki.info
Kontakt/Me contacter: Francia@skalecki.info
Zurück zum Seiteninhalt