Direkt zum Seiteninhalt
Menü überspringen
Georg Skalecki - Architectura Francorum
Menü überspringen
Loches - Église Saint-Ours
Lokalisierung - Beschreibung/Localisation - Description
Loches (Lucas)
Kreis/Dép.: Indre-et-Loire, Centre-Val de Loire, F
47.12672/0.99877

Klosterkirche
Martin; Ursus
Église Saint-Ours

Gründung/Fondation: Merowingerzeit (480-687): 491
Gründer: Eustache

Bau I 491 Saal; Apsis
Bau II (?) 800 (nach) (?) Westbau (?)
Bau II 963 Westbau; Krypta
Bau III 1030 Dreischiffig; Basilika; Ostquerhaus; Krypta
Bau akt 1130

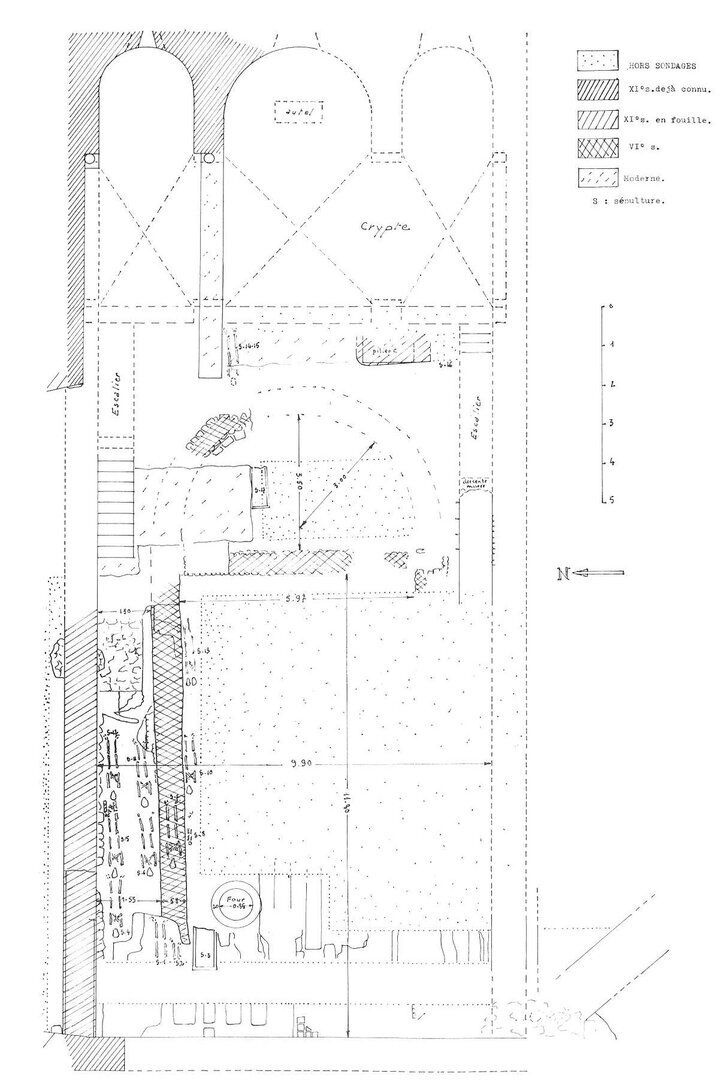
Eustache, Bischof von Tours, gründete 491 hier ein Martinskloster. Über die frühen Bauten und eventuelle karolingische Neubauten sind wir nicht informiert. Es wurden hier die Reliquien des Heiligen Gürtels verehrt. Ein Neubau von 963/985 erhielt einen Westbau, der möglicherweise bereits einen Vorgänger besaß. Das Schiff wurde 1030/1050 erneuert, dabei auch eine Krypta eingebaut, die auch einen Vorgänger gehabt haben könnte. Chor und Querhaus entstanden 1130 mit Veränderungen vom Ende des 18. Jahrhunderts und 1844. Der Westbau wurde ab 1168 erneuert.

Eustache, évêque de Tours, y fonda en 491 un monastère dédié à saint Martin. Nous ne sommes pas informés des premières constructions et des éventuelles nouvelles constructions carolingiennes. On y vénérait les reliques de la Sainte Ceinture. Une nouvelle construction de 963/985 a été dotée d'un bâtiment occidental qui avait peut-être déjà un prédécesseur. La nef a été rénovée en 1030/1050 et une crypte a été construite, qui pourrait également avoir eu un prédécesseur. Le choeur et le transept ont été construits en 1130 avec des modifications de la fin du 18ème siècle et de 1844. Le bâtiment occidental a été rénové à partir de 1168.

Quellen/Sources
- Prinz, Friedrich 1965 (1988). S. 26, Karte IB, Karte XIIA. [...]
- Dictionnaire des églises de France 1966-1971. IIID S. 97f. [...]
- Lelong, Charles (Loches) 1974. S. 189-199. [...]
- Les premiers monuments chrétiens de la France 1995-1998. Bd. 2, S. 100-102. [...]
- Guide du patrimoine Centre, Val de Loire 1995. S. 414-417. [...]
- Duret-Molines, Patricia 2003. S. 169-177. [...]
- Fleury, Gérard 2003. S. 179-188. [...]
- Sapin, Christian 2014. S. 252. [...]
- Skalecki, Georg 2024. S. 5-44, Kat. C9. [...]


© Georg Skalecki: Architectura Francorum
Version: 17.10.2025
Als Quelle beim Zitieren ist anzugeben/La source des citations doit être indiquée:
Georg Skalecki: Architectura Francorum - https://francia.skalecki.info
Kontakt/Me contacter: Francia@skalecki.info
Zurück zum Seiteninhalt