Direkt zum Seiteninhalt
Menü überspringen
Georg Skalecki - Architectura Francorum
Menü überspringen
Payerne - Abtei Payerne
Lokalisierung - Beschreibung/Localisation - Description
Payerne (Paternia; Peterlingen)
Kreis/Dép.: Broye-Vully, Waadt, CH
46.82078/6.93769

Klosterkirche
Maria
Abtei Payerne

Gründung/Fondation: Merowingerzeit (480-687): 500/590

Bau I 587 Saal
Bau II 800 (um) Dreischiffig; Ostquerhaus; Westbau; Atrium
Bau III 962 Dreischiffig
Bau akt 1030 (um) Dreischiffig; Vierungsturm; Westbau

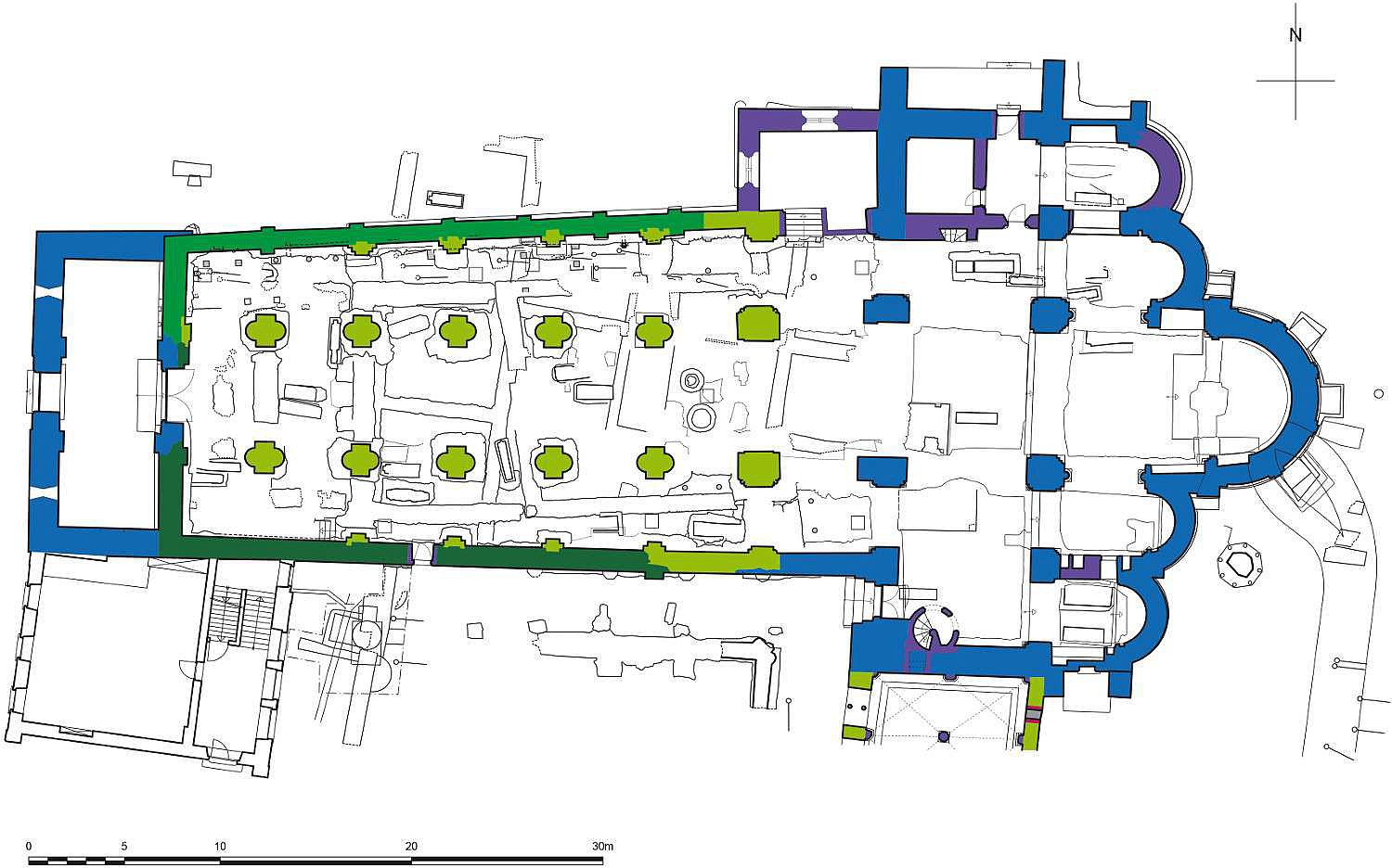
587 wurde das Kloster über römischen Resten gegründet. Der Gründungsbau war wohl eine einfache Saalkirche unter Nutzung römischer Teile. Ende des 8. Jahrhunderts wird eine neue Kirche erbaut, die eine neue, leicht gedrehte und damit exakte West-Ost-Ausrichtung erhält. Der dreischiffige Bau mit typischen schmalen Seitenschiffen wird schon bald, kurz nach 800 (?) nach Westen durch einen Westbau erweitert wird. Dem Westbau war noch ein Atrium vorgelagert. Im Osten ist ein Querschiff aus den spärlichen Funden zu deuten. Payerne gelangte 962 an als eines der ersten Klöster an Cluny und es entstand nach dem Vorbild von Cluny ein Neubau wieder mit Westbau. Ein tiefgreifender Umbau mit einer reichen Ostanlage mit Apsiden und Vierungsturm erfolgte um 1030. Dieser Bau ist weitestgehend erhalten.

Le monastère a été fondé en 587 sur des vestiges romains. La construction de la fondation était probablement une simple église en forme de salle utilisant des parties romaines. A la fin du 8e siècle, une nouvelle église est construite, avec une nouvelle orientation ouest-est légèrement tournée et donc exacte. Le bâtiment à trois nefs avec des nefs latérales étroites typiques est bientôt agrandi vers l'ouest par un bâtiment occidental, peu après 800 (?). Un atrium était encore situé devant le bâtiment ouest. A l'est, un transept peut être interprété à partir des rares découvertes. Payerne fut l'un des premiers monastères à être rattaché à Cluny en 962 et un nouvel édifice fut construit sur le modèle de Cluny, à nouveau avec un bâtiment occidental. Une transformation profonde avec une riche installation à l'est avec absides et tour de la croisée a eu lieu vers 1030. Cette construction est en grande partie conservée.

Quellen/Sources
- Reinhardt, Hans 1953. S. 375-391. [...]
- Prinz, Friedrich 1965 (1988). Karte XIIA. [...]
- Oswald; Schaefer; Sennhauser (Kat.) 1966. S. 256f. [...]
- Dictionnaire des églises de France 1966-1971. VD S. 113f. [...]
- Reclams Kunstführer Schweiz 1979. S. 541-547. [...]
- Sennhauser, Hans Rudolf 1991. S. 1ff. [...]
- Faccani, Guido 2016. S. 1ff. [...]
- Skalecki, Georg 2024. S. 5-44, Kat. B34. [...]


© Georg Skalecki: Architectura Francorum
Version: 24.11.2025
Als Quelle beim Zitieren ist anzugeben/La source des citations doit être indiquée:
Georg Skalecki: Architectura Francorum - https://francia.skalecki.info
Kontakt/Me contacter: Francia@skalecki.info
Zurück zum Seiteninhalt