Direkt zum Seiteninhalt
Menü überspringen
Georg Skalecki - Architectura Francorum
Menü überspringen
Chalon-sur-Saône - Cathédrale Saint-Vincent
Lokalisierung - Beschreibung/Localisation - Description
Chalon-sur-Saône (Cabillonum)
Kreis/Dép.: Saône-et-Loire, Bourgogne-Franche-Comté, F
46.78257/4.85918

Domkirche
Vincentius
Cathédrale Saint-Vincent

Gründung/Fondation: Karolingerzeit (687-888): 346

Bau I 346 (um)
Bau II 560 (um)
Bau III 813 Westbau (?)
Bau IV 1090
Bau akt 1220

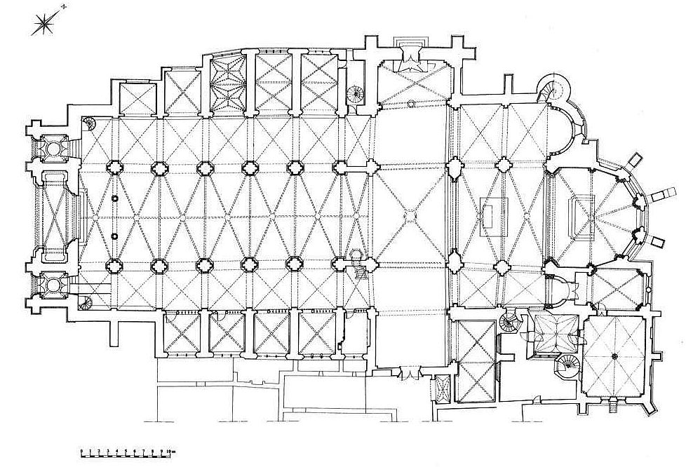
Chalon war eine römische Handelsstadt, ab dem 4. Jahrhundert Civitas. Die Stadt gehörte später zum Burgunderreich. Um 346 entstand ein Dombau auf römischen Resten. 542 oder wohl eher ab 561 wurde ein Neubau errichtet, denn ab 561 war Chalon Hauptstadt von Burgund unter Guntram I., einem Enkel von Chlodwig. Gregor von Tours beschreibt dieses Bauwerk als prächtige Kirche. 732 wurde die Stadt durch die Sarazenen zerstört. Ein Neubau der Kathedrale erfolgte unter Karl, beim Konzil 813 war sie vollendet. Über die Gestalt der karolingischen Kirche ist nichts bekannt, aber es ist auch in der Folge des merowingischen Bauwerks von einer Kathedrale mit hohem Anspruch auszugehen. Ob ein Westbau vorhanden war, ist unbekannt, aber nicht auszuschließen. 1090 beginnt man einen Neubau, der unvollendet blieb, von dem bis heute das Querhaus erhalten blieb. 1220/1230 erfolgt ein gotischer Neu- bzw. Umbau zum bestehenden Bauwerk.

Chalon était une ville commerciale romaine, puis une civitas à partir du 4e siècle. La ville a ensuite fait partie de l'empire bourguignon. Vers 346, une cathédrale a été construite sur des vestiges romains. En 542, ou plutôt à partir de 561, une nouvelle construction a été érigée, car à partir de 561, Chalon était la capitale de la Bourgogne sous Guntram Ier, un petit-fils de Clovis. Grégoire de Tours décrit cette construction comme une magnifique église. En 732, la ville fut détruite par les Sarrasins. La cathédrale fut reconstruite sous Charles et achevée lors du concile de 813. On ne sait rien de la forme de l'église carolingienne, mais on peut supposer qu'il s'agissait également d'une cathédrale de haut niveau à la suite de l'édifice mérovingien. On ignore s'il existait un bâtiment occidental, mais on ne peut pas l'exclure. En 1090, on entreprend une nouvelle construction, restée inachevée, dont le transept a été conservé jusqu'à aujourd'hui. En 1220/1230, on procède à une nouvelle construction ou à une transformation gothique de l'édifice existant.


Quellen/Sources
- Virey, Jean 1929. S. 426-434. [...]
- Dictionnaire des églises de France 1966-1971. IIA S. 39-41. [...]
- LexMA 1977-1998. Bd. 2, Sp. 1663-1666. [...]
- Topographie chrétienne 1986-2014. Bd. 4, S. 65f-74; Bd. 16.1, S. 76. [...]
- Reclams Kunstführer Frankreich V 1987. S. 158-162. [...]
- Stratford, Neil 2010. S. 75-94. [...]
- Skalecki, Georg 2024. S. 5-44, Kat. C15. [...]


© Georg Skalecki: Architectura Francorum
Version: 27.07.2025
Als Quelle beim Zitieren ist anzugeben/La source des citations doit être indiquée:
Georg Skalecki: Architectura Francorum - https://francia.skalecki.info
Kontakt/Me contacter: Francia@skalecki.info
Zurück zum Seiteninhalt