Direkt zum Seiteninhalt
Menü überspringen
Georg Skalecki - Architectura Francorum
Menü überspringen
Angers - Saint-Maurice
Lokalisierung - Beschreibung/Localisation - Description
Angers (Andecavis)
Kreis/Dép.: Maine-et-Loire, Pays de la Loire, F
47.47045/-0.55475

Domkirche
Mauritius
Saint-Maurice

Gründung/Fondation: Römerzeit (100-480): 372

Bau I 372
Bau II 800 (um) Saal
Bau III 1006-1025 Saal; Ostquerhaus; Apsiden
Bau akt 1150 Saal; Ostquerhaus

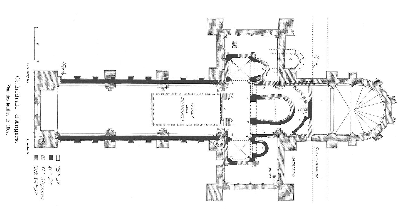
Das Bistum wurde 372 gegründet. Der Standort der Domkirche war, wie in den römischen Städten üblich, am Rande unmittelbar an der Stadtmauer. Über die Gründungsbauten gibt es keine Erkenntnisse. Ein durch Ausgrabungen nachgewiesener Bau des späten 8. Jahrhunderts scheint ein Saalbau gewesen zu sein. Es wird eine Kathedralgruppe wegen entsprechender Nachrichten vermutet. Wo ein Baptisterium stand, ist jedoch ungeklärt. 873 fand eine Reliquientranslation statt, wohl ohne Neubauten. Ein romanischer Neubau wurde 1025 geweiht. Er ist durch Ausgrabungen bekannt als Saalkirche mit Ostquerhaus und Apsiden an Chorhaupt und Querarmen. Bereits 1032 wurde das Bauwerk durch einen Brand zerstört. Um 1150 erfolgte der Neubau der bestehenden einschiffigen Kirche, die später, besonders im 16. Jahrhundert, noch Veränderungen erfuhr.

L'évêché a été fondé en 372. L'emplacement de l'église cathédrale était, comme il était d'usage dans les villes romaines, situé en périphérie, directement à côté des remparts. On ne dispose d'aucune information sur les bâtiments fondateurs. Une construction de la fin du 8e siècle, attestée par des fouilles, semble avoir été une salle. On suppose qu'il s'agit d'un groupe episcopal en raison de correspondantes. On ne sait toutefois pas où se trouvait un baptistère. Une translation de reliques a eu lieu en 873, sans doute sans nouvelles constructions. Une nouvelle construction romane a été consacrée en 1025. Les fouilles ont révélé qu'il s'agissait d'une église à nef unique avec transept oriental et absides au niveau du chef de choeur et des bras transversaux. Dès 1032, l'édifice fut détruit par un incendie. Vers 1150, on construisit une nouvelle église à nef unique, qui subit encore des modifications par la suite, notamment au 16e siècle.

Quellen/Sources
- Farcy, Louis de 1902. S. 488-498. [...]
- Urseau, Charles 1929, 2012. S. 1ff. [...]
- Mussat, André (Angers) 1964. S. 22-36. [...]
- Dictionnaire des églises de France 1966-1971. IIID S. 3-6. [...]
- Topographie chrétienne 1986-2014. Bd. 5, S. 67-81; Bd. 16.1, S. 30f. [...]
- Les premiers monuments chrétiens de la France 1995-1998. Bd. 2, S. 228-231. [...]


© Georg Skalecki: Architectura Francorum
Version: 11.10.2025
Als Quelle beim Zitieren ist anzugeben/La source des citations doit être indiquée:
Georg Skalecki: Architectura Francorum - https://francia.skalecki.info
Kontakt/Me contacter: Francia@skalecki.info
Zurück zum Seiteninhalt