Direkt zum Seiteninhalt
Menü überspringen
Georg Skalecki - Architectura Francorum
Menü überspringen
Montverdun - Prieuré de Saint-Porchaire
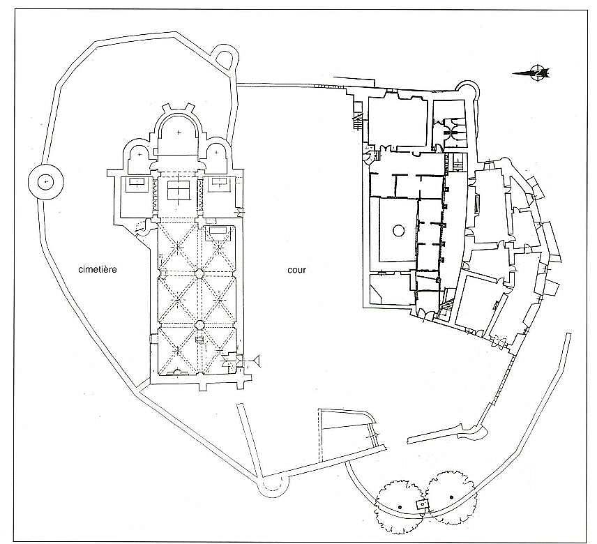
Lokalisierung - Beschreibung/Localisation - Description
Montverdun
Kreis/Dép.: Loire, Auvergne-Rhône-Alpes, F
45.71797/4.06651

Klosterkirche
Porcaire
Prieuré de Saint-Porchaire

Karolingerzeit (687-888): 728

Bau I 728
Bau akt 1200 (vor)

Das Priorat soll 728 von aus Lérins (obj-97) geflüchteten Mönchen gegründet worden sein, als die Klosterinsel von Sarazenen erobert worden war. Über die frühen Bauten gibt es keine Erkenntnisse. Im 11. Jahrhundert wurde es in ein Benediktinerkloster umgewandelt. Der bestehende Bau mit Vierungsturm stammt aus dem 12. Jahrhundert.

Le prieuré aurait été fondé en 728 par des moines ayant fui Lérins (obj-97), alors que l'île monastique avait été conquise par les Sarrasins. On ne dispose d'aucune information sur les premières constructions. Au 11ème siècle, il a été transformé en monastère bénédictin. L'édifice existant, avec sa tour de croisée, date du 12e siècle.

Quellen/Sources
Als Quelle beim Zitieren ist anzugeben/La source des citations doit être indiquée:
Georg Skalecki: Architectura Francorum - https://francia.skalecki.info
Kontakt/Me contacter: Francia@skalecki.info
Zurück zum Seiteninhalt