Direkt zum Seiteninhalt
Georg Skalecki - Architectura Francorum
Menü überspringen
Menü überspringen
Disentis - Kloster Disentis - St. Petrus
Lokalisierung - Beschreibung/Localisation - Description
Disentis (Mustér; Desertina)
Kreis/Dép.: Surselva,  Graubünden, CH
46.70680/8.85578

Klosterkirche
Petrus
Kloster Disentis St. Petrus

Gründung/Fondation: Karolingerzeit (687-888): 700 (um)

Bau I 800 (um) Saal; Zwei Apsiden
Bau II 940 (nach) Saal; Apsis
Bau III 1423 Saal
Zerstörung 1683

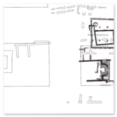
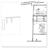
Das Kloster wurde der Legende nach um 700 zunächst als Zelle von dem irofränkischen Adeligen und Mönch Sigisbert und seinem rätischen Begleiter Placidus in der Desertina gegründet. Zur Geschichte siehe die Ausführungen zur Gründungskirche St. Maria (obj-807). Spätestens 800 bestanden drei Kirchen, die Gründungskirche St. Maria (Nordkirche) (obj-807), die wohl um 720/730 entstandene und südlich gelegene Kirche St. Martin (obj-806) sowie die dazwischen um 800 eingefügte kleine Kirche St. Peter. Um 800 entstand ein umfassender Umbau des gesamten Klosters. St. Maria Bau III wurde vollständig neu erbaut, und St. Martin Bau II wurde zur gleichen Zeit ebenfalls zum großen Saal mit drei Apsiden nach Osten verschoben. Dazwischen als Mittelkirche entstand St. Peter, möglicherweise aus einem ehemaligen Annex von St. Martin. Zwischen Nord- und Südkirche eingefügt entstand so ein kleiner Saal mit zwei Apsiden. 940 wurde der Bau von den Sarazenen zerstört, bestand aber als breiterer Kapellenbau, der 1423 noch einmal gotisch verändert wurde. 1683 erfolgte der Abbruch und der Beginn eines barocken Neubaus des gesamten Klosters. Eine neue Barockkirche entstand östlich der alten Kirchen in Nord-Süd-Ausrichtung. St. Peter verschwand dabei.

Selon la légende, le monastère a été fondé vers 700 dans la Desertina, initialement sous forme de cellule, par Sigisbert, noble et moine irlandais, et son compagnon rhétique Placidus. Pour l'histoire, voir les explications sur l'église fondatrice Sainte-Marie (obj-807). Au plus tard en 800, il existait trois églises : l'église fondatrice Sainte-Marie (église nord) (obj-807), l'église Saint-Martin (obj-806) située au sud, probablement construite vers 720/730, et la petite église Saint-Pierre, ajoutée entre les deux vers 800. Vers 800, l'ensemble du monastère a fait l'objet d'une rénovation complète. Sainte-Marie III a été entièrement reconstruite et Saint-Martin II a été déplacée vers l'est pour devenir une grande salle avec trois absides. Entre les deux, l'église centrale Saint-Pierre a été construite, probablement à partir d'une ancienne annexe de Saint-Martin. Une petite salle avec deux absides a ainsi été ajoutée entre les églises nord et sud. En 940, le bâtiment fut détruit par les Sarrasins, mais subsista sous la forme d'une chapelle plus large, qui fut à nouveau transformée en style gothique en 1423. En 1683, la démolition commença et la reconstruction baroque de l'ensemble du monastère fut lancée. Une nouvelle église baroque fut construite à l'est des anciennes églises, dans un axe nord-sud. Saint-Pierre disparut alors.

Quellen/Sources
- Prinz, Friedrich 1965 (1988). Karte IB, XIIC. [...]
- Oswald; Schaefer; Sennhauser (Kat.) 1966. S. 60-62. [...]
- Dictionnaire des églises de France 1966-1971. VD S. 105-107. [...]
- LexMA 1977-1998. Bd. 3, Sp. 1110f. [...]
- Reclams Kunstführer Schweiz 1979. S. 239-243. [...]
- Heitz, Carol 1980. S. 24-29. [...]
- Müller, Iso 1986. S. 1-45. [...]
- Jacobsen; Schaefer; Sennhauser (Nachtragsband) 1991. S. 93-95. [...]
- Sennhauser, Hans Rudolf (Hg.) 2003. Bd. 1, S. 80-87. [...]
- Riek, Markus; Goll, Jürg; Descoeudres, Georges (Hg.) 2014. S. 84-87; S. 280.. [...]


© Georg Skalecki: Architectura Francorum
Version: 20.04.2026
Als Quelle beim Zitieren ist anzugeben/La source des citations doit être indiquée:
Georg Skalecki: Architectura Francorum - https://francia.skalecki.info
Kontakt/Me contacter: Francia@skalecki.info
Zurück zum Seiteninhalt