Direkt zum Seiteninhalt
Menü überspringen
Georg Skalecki - Architectura Francorum
Menü überspringen
Disentis - Kloster Disentis - St. Martin
Lokalisierung - Beschreibung/Localisation - Description
Disentis (Mustér; Desertina)
Kreis/Dép.: Surselva, Graubünden, CH
46.70674/8.85595

Klosterkirche
Martin
Kloster Disentis St. Martin

Gründung/Fondation: Karolingerzeit (687-888): 700 (um)

Bau I 720/730 Saal; Apsis; Krypta 9 x ?
Bau Ia 765 (vor) Saal; Apsis ummantelt; Krypta
Bau II 800 (um) Saal; Drei Apsiden 15 x 22,50
Bau III 1498 Dreischiffig
Zerstörung 1683

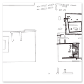
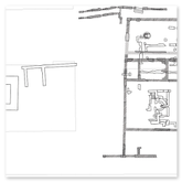
Das Kloster wurde um 700 zunächst als Zelle von dem irofränkischen Adeligen und Mönch Sigisbert und seinem rätischen Begleiter Placidus in der Desertina gegründet. Zur Geschichte siehe die Ausführungen zur Gründungskirche St. Maria (obj-807). Spätestens 800 bestanden drei Kirchen, die Gründungskirche St. Maria (Nordkirche) (obj-807), die wohl um 720/730 entstandene und südlich gelegene Kirche St. Martin sowie die dazwischen um 800 eingefügte kleine Kirche St. Peter (obj-228). Zeitgleich mit Bau II der Nordkirche wurde um 720/730 mit Einsetzen der Förderung durch die Franken Bau I von St. Martin als Saal mit einer hufeisenförmigen Apsis und Krypta erbaut. Die Apsis wurde zeitnah rechteckig ummantelt. Bereits um 800 entstand ein umfassender Umbau des gesamten Klosters. St. Maria Bau III wurde vollständig neu erbaut, und St. Martin Bau II wurde zur gleichen Zeit ebenfalls zum großen Saal mit drei Apsiden nach Osten verschoben. Dazwischen als Mittelkirche entstand St. Peter (obj-228). 1387 gab es einen Brand. St. Martin III wurde schließlich 1498 dreischiffig gotisch umgebaut. 1683 erfolgte der Abbruch und der Beginn eines barocken Neubaus des gesamten Klosters. Eine neue Barockkirche entstand östlich der alten Kirchen in Nord-Süd-Ausrichtung. St. Martin macht den barocken Klostergebäuden bzw. dem Osthof Platz, wo man die Reste der Fundamente im 20. Jahrhundert freigelegt hat.

Le monastère a été fondé vers 700 dans la Desertina, d'abord sous forme de cellule, par le noble et moine irlandais Sigisbert et son compagnon rhétique Placidus. Pour l'histoire, voir les explications sur l'église fondatrice Sainte-Marie (obj-807). Au plus tard en 800, il existait trois églises: l'église fondatrice Sainte-Marie (église nord) (obj-807), l'église Saint-Martin située au sud, probablement construite vers 720/730, et la petite église Saint-Pierre (obj-228), ajoutée entre les deux vers 800. Parallèlement à la construction II de l'église nord, la construction I de Saint-Martin a été réalisée vers 720/730 avec le soutien des Francs. Il s'agissait d'une salle avec une abside en forme de fer à cheval et une crypte. L'abside a été rapidement recouverte d'une enveloppe rectangulaire. Dès 800, l'ensemble du monastère a fait l'objet d'une rénovation complète. Sainte-Marie (troisième phase de construction) a été entièrement reconstruite et, au même moment, Saint-Martin (deuxième phase de construction) a également été déplacée vers l'est pour devenir une grande salle avec trois absides. Entre les deux, l'église centrale Saint-Pierre (obj-228) a été construite. En 1387, un incendie s'est déclaré. Saint-Martin III a finalement été reconstruite en 1498 dans un style gothique à trois nefs. En 1683, le monastère fut démoli et une nouvelle construction baroque fut entreprise. Une nouvelle église baroque fut érigée à l'est des anciennes églises, dans une orientation nord-sud. Saint-Martin cède la place aux bâtiments baroques du monastère et à la cour est, où les vestiges des fondations ont été mis au jour au XXe siècle.

Quellen/Sources
- Prinz, Friedrich 1965 (1988). Karte IB, XIIC. [...]
- Oswald; Schaefer; Sennhauser (Kat.) 1966. S. 60-62. [...]
- Dictionnaire des églises de France 1966-1971. VD S. 105-107. [...]
- LexMA 1977-1998. Bd. 3, Sp. 1110f. [...]
- Reclams Kunstführer Schweiz 1979. S. 239-243. [...]
- Heitz, Carol 1980. S. 24-29. [...]
- Müller, Iso 1986. S. 1-45. [...]
- Jacobsen; Schaefer; Sennhauser (Nachtragsband) 1991. S. 93-95. [...]
- Sennhauser, Hans Rudolf (Hg.) 2003. Bd. 1, S. 80-87. [...]
- Riek, Markus; Goll, Jürg; Descoeudres, Georges (Hg.) 2014. S. 84-87; S. 280. [...]


© Georg Skalecki: Architectura Francorum
Version: 03.12.2025
Als Quelle beim Zitieren ist anzugeben/La source des citations doit être indiquée:
Georg Skalecki: Architectura Francorum - https://francia.skalecki.info
Kontakt/Me contacter: Francia@skalecki.info
Zurück zum Seiteninhalt