Direkt zum Seiteninhalt
Menü überspringen
Georg Skalecki - Architectura Francorum
Menü überspringen
Bad Säckingen - Fridolinsstift
Lokalisierung - Beschreibung/Localisation - Description
Bad Säckingen (Seckinga; Säckingen)
Kreis/Dép.: Waldshut, Baden-Württemberg, D
47.55302/7.94966

Klosterkirche (Nonnen)
Hilarius; Fridolinus
Fridolinsstift

Gründung/Fondation: Merowingerzeit (480-687): 522
Gründer: Fridolin

Bau I 522
Bau II 837 (?) Krypta; Westbau (?)
Bau III 917 (nach) Westbau; Narthex
Bau akt 1343-1360

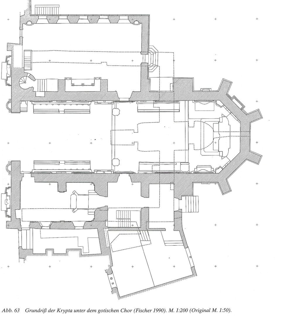
Die Gründung erfolgte wohl 522 durch den Missionar Fridolin, noch von König Chlodwig I. (+511) veranlasst. Fridolin kam von Poitiers, wohin auch später noch beste Beziehungen bestanden. So kam es, dass Hilarius von Poitiers (+367) der erste Patron des Klosters wurde. Natürlich muss es auch in dieser Zeit ein massives Bauwerk gegeben haben, dessen Aussehen aber nicht durch verwertbare Spuren erschlossen werden kann. Bald wurde Säckingen Königskloster und nahm an Bedeutung zu. Im 8. und 9. Jahrhundert wurde Säckingen als königliches Frauenstift ein wichtiger Stützpunkt karolingischen Einflusses in Alemannien. 837/877 war Bertha, die Enkelin Ludwig des Frommen, Äbtissin. In dieser Zeit wird es sicher auch Bautätigkeiten gegeben haben, von denen nur die Gangkrypta bekannt ist, die in der Forschung zu Recht mit der Gallus-Krypta von 830 verglichen wurde. Von darüber hinaus gehenden baulichen Besonderheiten ist auszugehen. Der archäologisch nachgewiesene Westbau mit Vorkirche (Vorhof oder Narthex) dürfte wohl eher aus dieser Zeit stammen und im Zusammenhang mit der verstärkten Verehrung der Fridolin Reliquien stehen. Der untere Teil des heutigen Westbaus, der als romanisch angesehen wird, kann somit einem karolingischen Vorgänger folgen. Nach den Ungarneinfällen von 917 entstand zunächst ein romanischer Neubau, der sicher wesentliche Teile des karolingischen Baues übernahm. Nach dem Stadtbrand von 1272 wurde der gotische Neubau errichtet, der 1360 geweiht wurde. 1698 erfolgte eine Barockisierung.

La fondation a probablement eu lieu en 522 par le missionnaire Fridolin, à l'initiative du roi Clovis Ier (+511). Fridolin venait de Poitiers, où il entretenait encore d'excellentes relations par la suite. C'est ainsi qu'Hilaire de Poitiers (+367) devint le premier patron du monastère. Bien entendu, une construction massive devait également exister à cette époque, mais son aspect ne peut être révélé par des traces exploitables. Säckingen devint bientôt un monastère royal et gagna en importance. Aux 8ème et 9ème siècles, Säckingen devint un monastère royal féminin et un point d'appui important de l'influence carolingienne en Alémanie. En 837/877, Bertha, la petite-fille de Louis le Pieux, était abbesse. A cette époque, il y a certainement eu des activités de construction, dont on ne connaît que la crypte du couloir, que les chercheurs ont comparée à juste titre à la crypte de Gallus de 830. On peut supposer l'existence de particularités architecturales allant au-delà. Le bâtiment ouest avec l'église antérieure (avant-cour ou nathex), attesté par l'archéologie, devrait plutôt dater de cette époque et être lié à la vénération accrue des reliques de Fridolin. La partie inférieure du bâtiment ouest actuel, considérée comme romane, peut donc suivre un prédécesseur carolingien. Après les invasions hongroises de 917, une nouvelle construction romane fut d'abord érigée, reprenant certainement des parties essentielles de l'édifice carolingien. Après l'incendie de la ville en 1272, un nouvel édifice gothique a été construit et consacré en 1360. En 1698, une rénovation baroque a été effectuée.


Quellen/Sources
- Prinz, Friedrich 1965 (1988). Karte XIIB. [...]
- Oswald; Schaefer; Sennhauser (Kat.) 1966. S. 290f. [...]
- Jehle, Fridolin 1975. S. 3-16  [...]
- Reinle, Adolf 1975. S. 17-42. [...]
- Jacobsen; Schaefer; Sennhauser (Nachtragsband) 1991. S. 357. [...]
- Dehio Handbuch (Baden-Württemberg Bd. 2 1997). S. 31-34. [...]
- Schmaedecke, Felicia 1999. S. 1ff. [...]
- Zettler, Alfons 2000. S. 35-51. [...]
- Skalecki, Georg 2025. S. 5-46, Kat. A95. [...]


© Georg Skalecki: Architectura Francorum
Version: 13.01.2026
Als Quelle beim Zitieren ist anzugeben/La source des citations doit être indiquée:
Georg Skalecki: Architectura Francorum - https://francia.skalecki.info
Kontakt/Me contacter: Francia@skalecki.info
Zurück zum Seiteninhalt