Direkt zum Seiteninhalt
Menü überspringen
Georg Skalecki - Architectura Francorum
Menü überspringen
Wandignies-Hamage - Église Saint-Pierre
Lokalisierung - Beschreibung/Localisation - Description
Wandignies-Hamage (Hamage)
Kreis/Dép.: Nord, Hauts-de-France, F
50.40073/3.30041

Klosterkirche (Nonnen)
Petrus; Maria
Église Saint-Pierre

Gründung/Fondation: Merowingerzeit (480-687): 630 (um)

Bau I 630/660 Saal; Apsis
Bau II 690-710 Saal; Rechteckchor; Apsis
Bau III 800 (nach) Saal; Rechteckchor; Westbau (?)
Zerstörung 881
Bau IV 1133
Zerstörung 1700 (nach)

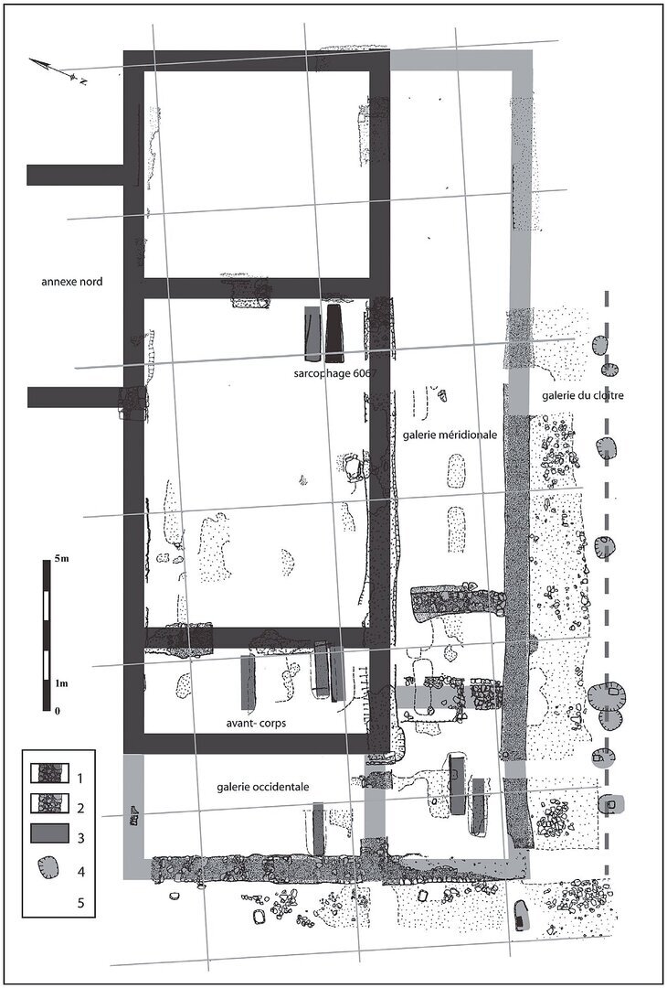
625/639 wurde das Nonnenkloster von der Adeligen Gertrud von Cambrai gegründet, die auch die erste Äbtissin wurde. Dazu wurde am Ufer der Scrape, nördlich des späteren Standortes eine Peterskirche erbaut. Der Gertrud folgte bald Eusebia, die wohl eine neue Kirche, Maria geweiht, südlich davon erbauen ließ. Die zu diesem Zeitpunkt bestehende Abhängigkeit von Marchiennes (obj-511) wurde 644 gelöst. Dennoch kamen später Reliquien der Eusebia (+660) nach Marchiennes. In Hamage entstand nach dem Tode der Eusebia ein Grabbau, nördlich neben der Marienkirche, die 690-710 als Saalbau mit Rechteckchor und Apsis erheblich vergrößert wurde. Anfang des 9. Jahrhunderts wurde diese Kirche ersetzt durch eine größere Kirche, die im Osten einen großen Rechteckchor erhielt und im Westen einen Vorbau, der auch ein Westbau gewesen seine könnte, wie ihn wohl auch Marchienne im 9. Jahrhundert erhielt. 881 zerstörten die Wikinger das Kloster, das eine längere Zeit brach lag. Erst 1133 wurde Hamage von Marchiennes aus als Priorat wiederbelebt, bis es im 18. Jahrhundert zerstört wurde. Ab 1991 wurden Teile der Anlage ausgegraben und sind begehbar.

En 625/639, le couvent fut fondé par la noble Gertrude de Cambrai, qui en devint également la première abbesse. Pour ce faire, une église Saint-Pierre fut construite sur les rives de la Scrape, au nord du futur site. Gertrude fut bientôt suivie par Eusebia, qui fit probablement construire une nouvelle église, dédiée à Marie, au sud de celle-ci. La dépendance de Marchiennes (obj-511) qui existait à ce moment-là fut résolue en 644. Néanmoins, des reliques d'Eusebia (+660) arrivèrent plus tard à Marchiennes. A Hamage, un édifice funéraire fut construit après la mort d'Eusebia, au nord, à côté de l'église de Marie, qui fut considérablement agrandie en 690-710 pour devenir une salle avec un choeur rectangulaire et une abside. Au début du 9e siècle, cette église a été remplacée par une église plus grande, dotée d'un grand choeur rectangulaire à l'est et d'un avant-corps à l'ouest, qui aurait également pu être un bâtiment occidental, comme celui que Marchienne a probablement reçu au 9e siècle. En 881, les Vikings ont détruit le monastère, qui est resté en friche pendant une longue période. Ce n'est qu'en 1133 que Hamage fut relancé comme prieuré à partir de Marchiennes, jusqu'à sa destruction au 18ème siècle. A partir de 1991, des parties du site ont été fouillées et sont accessibles.


Quellen/Sources
- Prinz, Friedrich 1965 (1988). Karte XIIB. [...]
- Louis, Étienne 2002, S. 1ff. [...]
- Untermann, Matthias 2006. S. 72. [...]
- Louis, Étienne 2014, S. 357-385. [...]
- Louis, Étienne 2015. S. 1-15. [...]


© Georg Skalecki: Architectura Francorum
Version: 03.11.2025
Als Quelle beim Zitieren ist anzugeben/La source des citations doit être indiquée:
Georg Skalecki: Architectura Francorum - https://francia.skalecki.info
Kontakt/Me contacter: Francia@skalecki.info
Zurück zum Seiteninhalt