Direkt zum Seiteninhalt
Menü überspringen
Georg Skalecki - Architectura Francorum
Menü überspringen
Thierhaupten - Kloster Thierhaupten
Lokalisierung - Beschreibung/Localisation - Description
Thierhaupten
Kreis/Dép.: Augsburg, Bayern, D
48.56222/10.91165

Klosterkirche
Petrus; Paulus
Kloster Thierhaupten

Gründung/Fondation: Karolingerzeit (687-888): 760/790
Gründer: Tassilo III.

Bau I 760 Saal; Rechteckchor
Bau II 846 (nach) Westbau (?); Westapsis (?); Drei Apsiden (?); Krypta (?)
Bau akt 1170 (vor) Dreischiffig; Basilika; Drei Apsiden; Zweiturmfassade

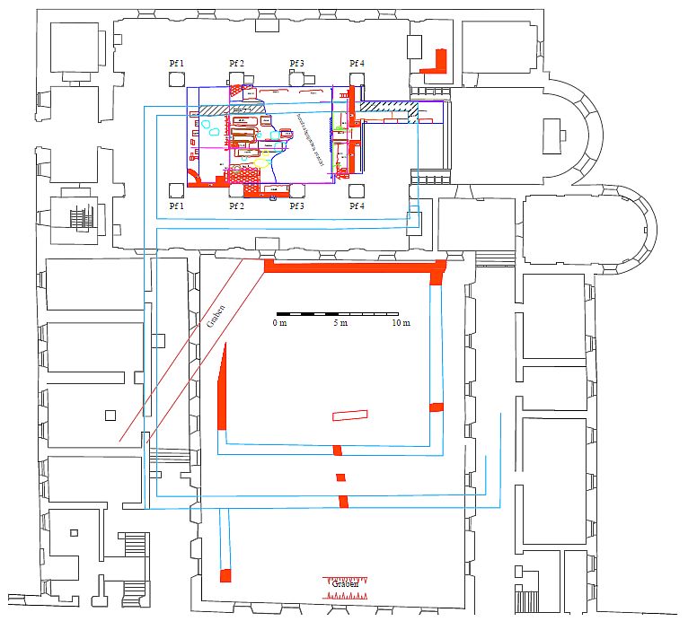
Um 760 wurde neben anderen Klöstern von Tassilo III. der Legende nach auch Thierhaupten gegründet. Trotz bestehender Zweifel, kann man daran festhalten. Die Gestalt des Gründungsbaus ist unbekannt, dürfte aber wohl ein Saalbau gewesen sein. Nach einem Brand gab es wohl 846 einen Neubau. Verwüstungen während der Ungarneinfälle um 950 sind zu vermuten, worauf erst 1100/1170 ein Wiederaufbau entstand. Inwieweit ältere Strukturen übernommen wurden, ist unklar. Bei unsachgemäßen Ausgrabungen 1971 sind viele Spuren zerstört worden, die Aufklärung hätten bringen können. Der Neubau von 1170 zeigt sich als dreischiffige Basilika ohne Querhaus mit drei Apsiden. Im Westen wird eine Westapsis von zwei Türmen (nur der Nordturm ragt auf) flankiert in der Art des Gallener Klosterplans, wie es bei dem ebenfalls von Tassilo gegründeten Kloster Metten (obj-524) auch zu finden ist. Dies könnte eine karolingische Disposition sein, die sich im Grunde beim Neubau von 1170 erhalten hat. Dieser ist im Kern nach einer 1714 erfolgten Barockisierung erhalten, wobei die Seitenapsiden später entfernt wurden.

Selon la légende, Thierhaupten aurait été fondé vers 760 par Tassilon III, parallèlement à d'autres monastères. Malgré les doutes qui subsistent, on peut s'en tenir à cette version. La forme du bâtiment d'origine est inconnue, mais il s'agissait probablement d'une salle. Après un incendie, un nouveau bâtiment a probablement été construit en 846. On suppose que des ravages ont été causés lors des invasions hongroises vers 950, après quoi une reconstruction a eu lieu entre 1100 et 1170. On ne sait pas dans quelle mesure les structures anciennes ont été reprises. Des fouilles inappropriées menées en 1971 ont détruit de nombreuses traces qui auraient pu apporter des éclaircissements. Le nouveau bâtiment de 1170 se présente comme une basilique à trois nefs sans transept avec trois absides. À l'ouest, une abside occidentale est flanquée de deux tours (seule la tour nord est encore visible), à l'image du plan du monastère de Gallen, que l'on retrouve également dans le monastère de Metten (obj-524), également fondé par Tassilo. Il pourrait s'agir d'une disposition carolingienne qui a été conservée dans la nouvelle construction de 1170. Celle-ci a été conservée dans son essence après une baroquisation en 1714, les absides latérales ayant été supprimées par la suite.

Quellen/Sources
- Prinz, Friedrich 1965 (1988). S. 365, Karte X. [...]
- Dehio Handbuch (Bayern Bd. 3 1989). S. 985-988. [...]
- Willi, Gerhard; Fassl, Peter (Hg.) 2000. S. 1ff. [...]
- Germania Benedictina 2014. Bd. 2.3., S. 2347-2366. [...]
- Schwenk, Peter 2022. S. 47-160. [...]
- Skalecki, Georg 2024. S. 5-44, Kat. D1. [...]
- Skalecki, Georg 2025. S. 5-46, Kat. B67. [...]


© Georg Skalecki: Architectura Francorum
Version: 17.01.2026
Als Quelle beim Zitieren ist anzugeben/La source des citations doit être indiquée:
Georg Skalecki: Architectura Francorum - https://francia.skalecki.info
Kontakt/Me contacter: Francia@skalecki.info
Zurück zum Seiteninhalt