Direkt zum Seiteninhalt
Menü überspringen
Georg Skalecki - Architectura Francorum
Menü überspringen
Perrecy-les-Forges - Église Saint-Pierre-et-Saint-Benoît
Lokalisierung - Beschreibung/Localisation - Description
Perrecy-les-Forges (Patriciacum)
Kreis/Dép.: Saône-et-Loire, Bourgogne-Franche-Comté
46.61247/4.21527

Klosterkirche
Petrus; Benediktus
Église Saint-Pierre-et-Saint-Benoît

Karolingerzeit (687-888): 836

Bau I 836 (um)
Bau II 876 (um) Westbau (?)
Bau akt 1020/1030 Dreischiffig; Westbau; Narthex; Vierungsturm

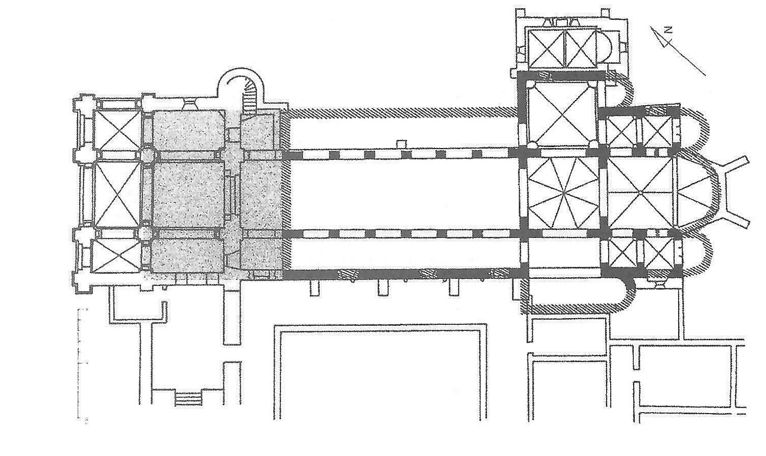
In der lange in königlichem, dann gräflichem Besitz befindlichen Villa Patriciacus wurde um 836 eine Cella angelegt, die 836 und 839 als Capella erwähnt wird. Um den Besitz abzusichern, übertrug Graf Eccard 876 diese Peterskirche der Abtei Saint-Benoît-sur-Loire (obj-445), von wo man Benediktusreliquien erhielt und wohl bald auch einen Neubau begann. Über die beiden ersten Bauten sind wir nicht unterrichtet. Wegen der Reliquientranslation und der Zeitstellung ist unbedingt von einem Westbau an Bau II auszugehen. Auch Saint-Benoît-sur-Loire besaß in dieser Zeit einen Westbau. In Perrecy ist beim romanischen Bau eine Lösung zu finden, für die es besonders im burgundischen Raum in romanischer Zeit einige Parallelen gibt. Dem eigentlichen Schiff ist ein dreischiffiger Narthex vorgelegt, vor dem wiederum ein zweitürmiger Westbau sich erhebt. Diese Lösung könnte vom karolingischen Vorgänger inspiriert sein, was auch eine Quelle, die einen Vorgänger mit Vorhalle (Galilaea) erwähnt, nahelegt. Nach Bauuntersuchungen geht man davon aus, dass die Vorhalle mehrgeschossig gestaltet werden sollte, was fast an einen Westbau wie Corvey (obj-25) erinnern könnte. Die Einwölbung des Langhauses erfolgte Ende des 11. Jahrhunderts.

Dans la villa Patriciacus, qui fut longtemps propriété royale puis comtale, une cella fut construite vers 836, mentionnée en 836 et 839 sous le nom de Capella. Afin de garantir la propriété, le comte Eccard céda en 876 cette église Saint-Pierre à l'abbaye Saint-Benoît-sur-Loire (obj-445), d'où l'on obtint des reliques de saint Benoît et où l'on commença sans doute rapidement une nouvelle construction. Nous ne disposons d'aucune information sur les deux premiers édifices. En raison du transfert des reliques et de la période, il faut absolument partir du principe qu'il s'agissait d'une construction occidentale sur le bâtiment II. Saint-Benoît-sur-Loire possédait également une construction occidentale à cette époque. À Perrecy, la construction romane offre une solution qui trouve plusieurs parallèles, notamment en Bourgogne à l'époque romane. La nef proprement dite est précédée d'un narthex à trois nefs, devant lequel s'élève une construction occidentale à deux tours. Cette solution pourrait s'inspirer de l'édifice carolingien précédent, comme le suggère une source mentionnant un édifice précédent avec un porche (Galilaea). D'après les études architecturales, on suppose que le porche devait comporter plusieurs étages, ce qui pourrait presque rappeler un porche occidental comme celui de Corvey (obj-25). La voûte de la nef a été construite à la fin du XIe siècle.

Quellen/Sources
- Reclams Kunstführer Frankreich V 1987. S. 388-399. [...]
- Darling, Masuyo Tokita 1994. S. 1ff. [...]
- Vergnolle, Éliane 1994. S. 43-75; S. 240. [...]
- Berry, Walter 1995. S. 297-324. [...]
- Krüger, Christina 2003. S. 72-81. [...]


© Georg Skalecki: Architectura Francorum
Version: 07.12.2025
Als Quelle beim Zitieren ist anzugeben/La source des citations doit être indiquée:
Georg Skalecki: Architectura Francorum - https://francia.skalecki.info
Kontakt/Me contacter: Francia@skalecki.info
Zurück zum Seiteninhalt